Sand separator
Wuchtschüttler / Vibrations- / Flachsortierer
Technische Daten:
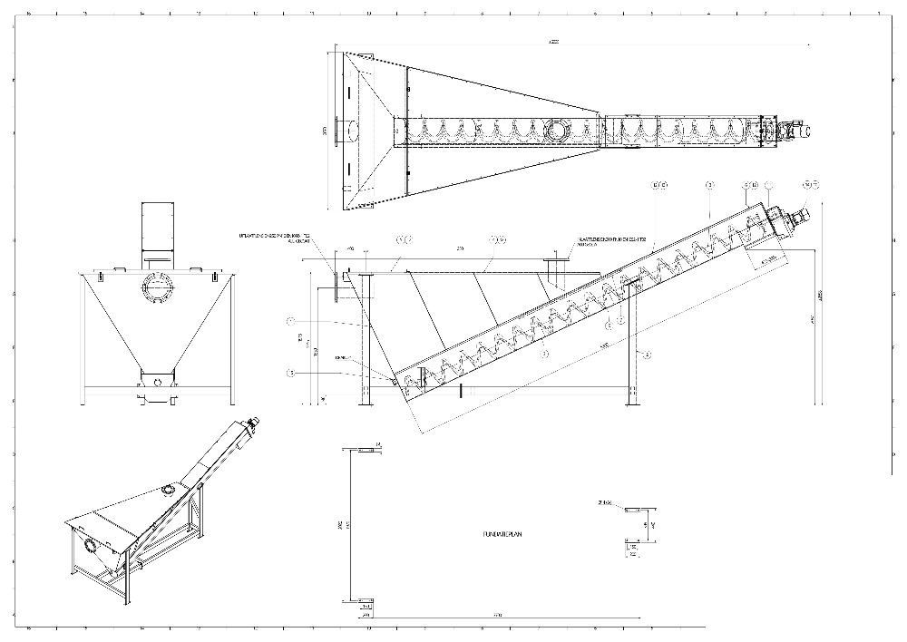
Beschreibung:
Kräftige, wellenlose Förderspirale mit Rechteckblattprofil. In einem u-förmigen Trog rotierende Spirale ohne Gegenlager, getragen von einem Verschleißfutter. Wahlweise mit Deckel in geschraubter Ausführung oder mit Schnellverschlüssen versehen. Der Sedimentationskasten ist konisch verjüngt auf der Förderspirale aufgesetzt. Der Sedimentationskasten erhält einen Deckel sowie einen Zulauf und einen Auslauf.
Auslegungsdaten
|
Conveyed medium: Process water from reject stream |
|
Contaminants: Sand |
|
Max. edge length: 0.2 - 20.0 mm |
|
Density: 1.4 kg/dcm³ |
|
Throughput capacity: 24 m³/h |
|
Solid content: max. 1.5 m³/h |
|
Separation size: 80% > 0.2 mm |
|
Other features: n/a |
|
pH: n/a |
Technische Daten
|
Drive type: Gear motor pulling |
|
Angle of inclination: 25° |
Trough/sedimentation box
|
Material: 1.4301 |
|
Material thickness: 2 mm |
|
Trough cover: Screwed |
|
Seal: yes |
Separator
|
Container volume: approx. 2.2 m³ |
|
Length: approx. 6,225 mm |
|
Width: approx. 2,070 mm |
|
Height: approx. 2,658 mm |
|
Discharge height: approx. 2,037 mm |
|
Inlet: DN 200 PN 10 loose flange EN 1092-1 T02 |
|
Material: AL-coated |
|
Outlet: DN 250 PN 10 loose flange EN 1092-1 T02 |
|
Material: AL-coated |
|
Emergency outlet: Blind plug R 2" |
|
Discharge chute: 435 x 335 mm smooth |
|
Supporting structure: Profiled steel |
|
Material: 1.4301 |
|
Pipe connection: 2" |
Spirale
|
Overall length: according to production drawing |
|
Diameter: 290 mm |
|
Pitch: 260 mm |
|
Blade geometry: 70 x 30 mm |
|
Material: Reko high tensile strength steel |
|
Flansch: |
|
Material: Fe 510 |
|
Drive shaft: |
|
Material: Fe 510 |
Wear shells
|
Material: REKOLON |
|
Dimensions: 1000 x 10 mm moulded |
Gearbox
|
Type: SEW flat gearbox |
|
Power: 0.75 kW |
|
Speed: 7.3 min |
|
Motor: 230/400 V, 3 ph, 50 Hz |
|
Protection class: IP 56 |
|
Insulation class: F |

