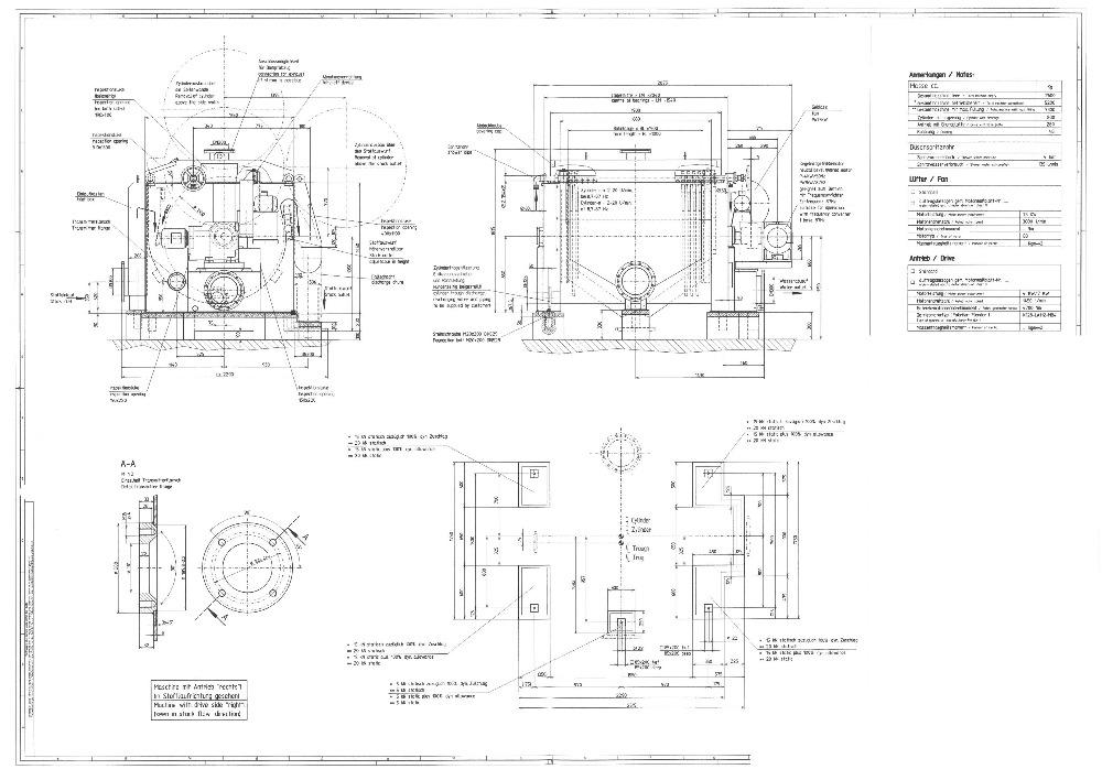
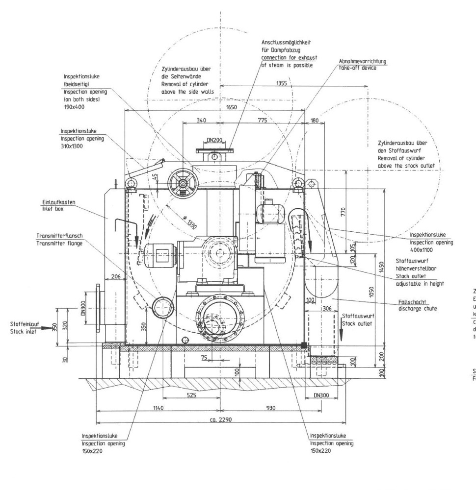
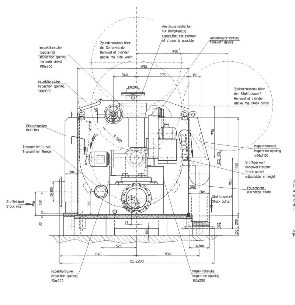
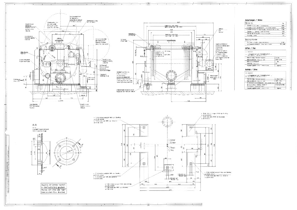
Eindicker Voith EFK, nahezu Neuzustand
Eindicker / Entwässerung / Washer
Technische Daten:
Maschine:
Eindicker Voith EFK, nahezu Neuzustand
Artikel-Nr.:
6237
Hersteller:
Voith
Typ:
EFK
Kapazität:
ca 50 t/day
Jahr:
2022








